Search

Leave a Message

Thank you for your message. I will be in touch with you shortly.

Explore Our Properties

Property Description

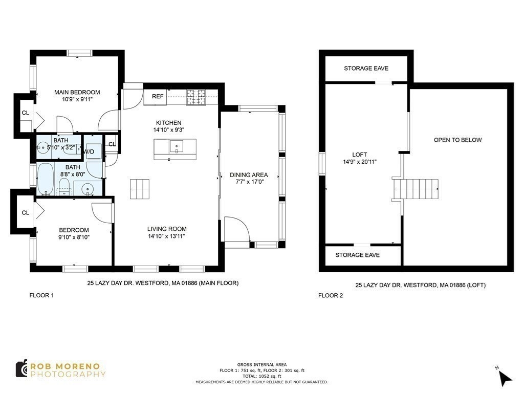
Looking for the perfect summer home? Look no further than Summer Village Westford, a gated SEASONAL condo community of single-family cottages situated around Long Sought For Pond. This property, formerly known as Wyman's Beach, has been reborn into a hidden gem containing beautiful individual cottages for the perfect summer enjoyment. This one was worth the wait with its superior location and wooded backyard. Inside, the open-concept living space is flooded w/ natural light, soaring ceilings, a spacious kitchen w/ a large center island. A noted bonus is a large storage loft and a half bath in the primary bedroom. Summer Village amenities include a private beach, kayaks, canoes, heated pools, tennis, pickleball, basketball courts, a restaurant and bar, a library, and a general store. Don't miss out on the chance to create unforgettable memories!

Overview

Property Status
Sold
MLS ID
73161361
Property Type
Condo
Year Built
2016

Features & Amenities

Total Area
887 Sq.Ft.
Water Frontage
Waterfront, Lake, Lake/Pond, 0 to 1/10 Mile To Beach, Beach Ownership(Private)
Stories
2
Water Source
Private
Utilites
for Gas Range
Pool
Association, In Ground
Roof
Shingle
Parking
Assigned
Heat Type
Electric, Wall Furnace
Air Conditioning
Wall Unit(s), None
Laundry Room
First Floor
Appliances
Range, Dishwasher, Microwave, Refrigerator, Washer, Dryer
Other Interior Features
Loft
Sewer
Private Sewer
HOA Amenities
Pool, Tennis Court(s), Playground, Park, Fitness Center, Sauna/Steam, Clubroom, Storage, Clubhouse
Security Features
Doorman, Security Guard, Security Gate
Sales Price
$345,000
Real Estate Tax
$4,297/yr
HOA
$441/mo
Zoning
RA

Downloads

25 Lazy Day Dr # 25

Schedule a Tour

I would love to show you this beautiful property. Please select your preferred date and time below. I will be in touch shortly to confirm your appointment.

Thank you

for your interest in 25 Lazy Day Dr # 25, Westford, MA 01886

I'm Interested In

25 Lazy Day Dr # 25

25 Lazy Day Dr # 25
Navigate